Ref
Busco
Tipo
En
Zona
Habitaciones
Baños
Características
Precio

VENTA DE TERRENO URBANO + PROYECTO BÁSICO EN RINCON DE LA VICTORIA, MALAGA. (ref.1573)

Parcela en venta en Rincón de la Victoria, Málaga

2.100.000 €
ref. 1573
6.800 m2 parcela
 

Terreno Urbano con una superficie grafica de 6.800 m², + Proyecto básico. Ubicado en una zona de alta demanda residencial, ideal para desarrollar un proyecto inmobiliario de alta rentabilidad.

El terreno está calificado como suelo residencial finalista, dispone de un techo máximo edificable de 2.554,09 m²t, lo que brinda un excelente potencial para promover un conjunto residencial moderno y atractivo.

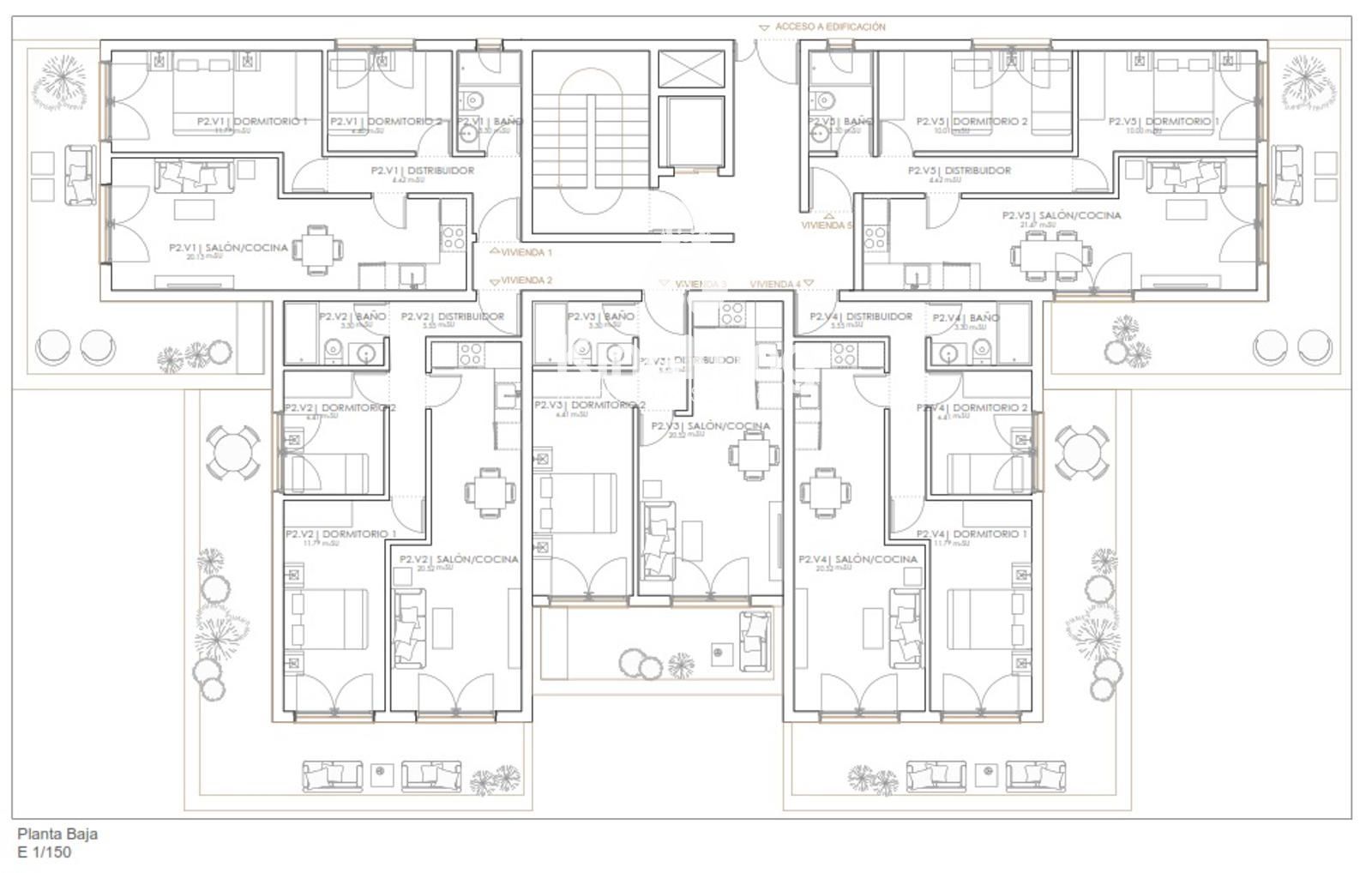
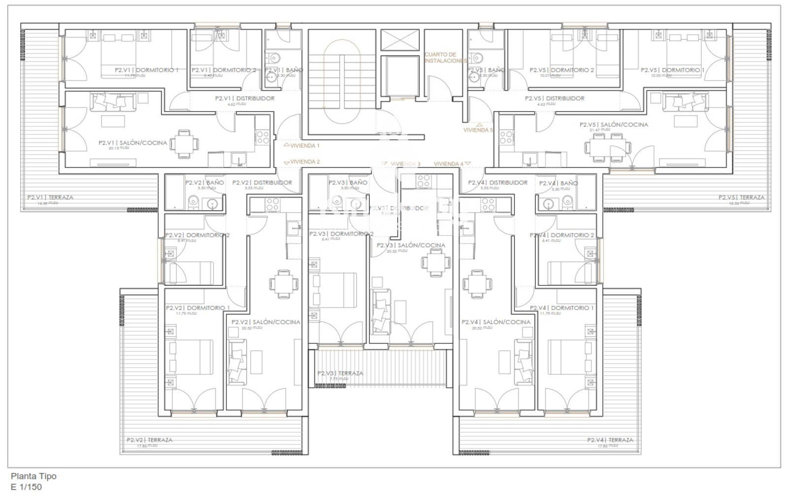
 La huella edificada se distribuye en tres bloques de idéntica huella, a diferentes alturas que nos marca las cotas de la calle.

 Se obtienen un total de 45 viviendas según la edificabilidad y huella permitida en la ficha urbanística y según las dimensiones indicadas por normativa. La distribución es de 36 viviendas (2 dormitorios) y 9 de (1 dormitorio). La distribución en altura es de PS+PB+P1 y P2.

Su ubicación privilegiada, con acceso directo a vía urbana y a pocos minutos del núcleo urbano, garantiza una gran conexión y alta demanda por parte de futuros compradores o arrendatarios.

Existe posibilidad de financiación, lo que convierte esta oportunidad en una excelente opción para inversores solventes que buscan un proyecto sólido y con visión de futuro.

No dejes pasar esta oportunidad de inversión segura y rentable. Contacta para más información. ¡IDEAL PARA INVERSORES, POSIBILIDAD DE FINANCIACIÓN! ¡SIN COMISIONES DE AGENCIA!


La dirección del inmueble es aproximada.

Si desea más información sobre esta propiedad, por favor, rellene el cuestionario: